Select from a project above.

Vennell Residence

Elk County, PA

1 2 3

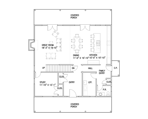
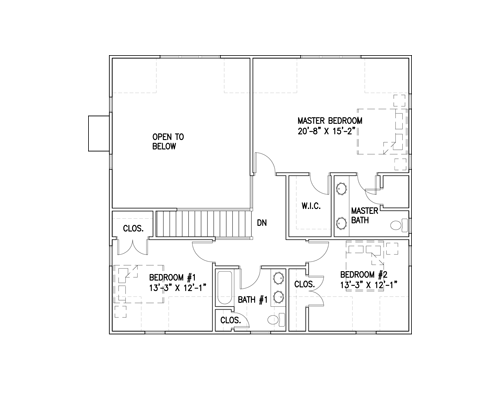
Designed as a weekend retreat in Northwestern Pennsylvania, this house is utilitarian and welcoming. The broad porches, connected living on the first floor, and cabin styling are key to this house nestling onto this wooded site.