Select from a project above.

Zager Residence

Gwynedd Valley, PA

1 2 3 4

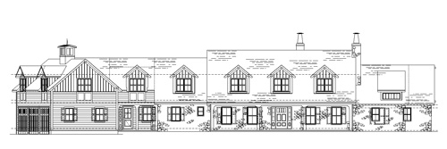
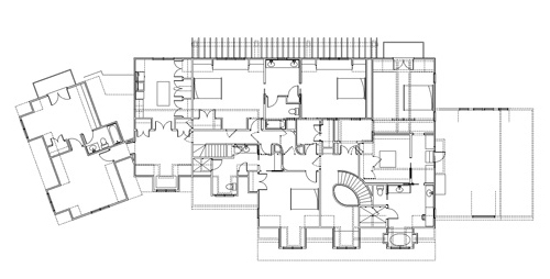
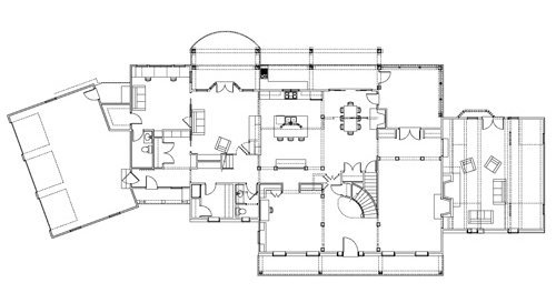
This proposed remodel of an existing mid-century ranch retains much of the first floor plan and materials of the elevation. The second floor expands the roof line, new dormers, and change of material. The motif was to be white painted stone, siding, and board and batten. The windows were to be black sashes as a stark contrast to the white body of the house.